$165,000
 $886 est/mo Sourced by Back At You

64845 Sun Oro Road,Joshua Tree, CA 92252

Joshua Tree, CA 92252

Share:

Description

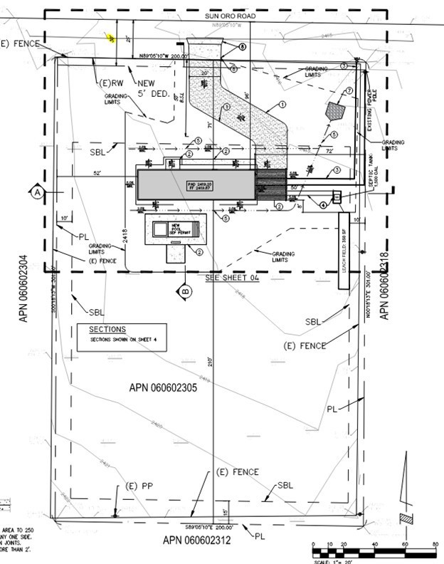
64845 Sun Oro Rd. Joshua Tree is a 1.38 acre land sold with plans for a very special modern home. Exceptional location next to Sunfair Dry Lake in Joshua Tree on a solid paved asphalt road. Water meter and electric poles are onsite for immediate construction. Full set of plans for a 1,558 square foot 3 bed, 2 bath house with a 2 space carport. Plans are with the county and are in final stages of approval. This can be a great modern home to live in or a short term rental with exceptional income and bookings. Joshua tree has great shopping and dinning in addition to being one of the best growing vacation rental markets and highly visited national park with world class hiking, rock climbing, and recreation. This land with plans is a shovel hovel ready project so it is ready to start building without waiting. The listing broker is also a general contractor and can build this modern masterpiece for it's lucky buyer.

Details

MLS #IG25218027
Listing TypeFor Sale
Sub-TypeResale
StatusActive
Days On Site53
Listing Provided ByAmrit Bakshi, Broker | Amrit Bakshi

Features

ZoningJT/RS-1
Acreage1.38
Property ViewYes

Exterior

Lot FeaturesZero To One Unit Acre

Location

Community FeaturesRural

Area Information

StateCA
CountySan Bernardino
CityJoshua Tree
Zip Code92252
AreaDC622 Sunfair West
Sourced by Back At You

Request a showing

Request a showing

Loading Form
MLS Internet Data Exchange (IDX) information is provided exclusively for consumers’ personal, non-commercial use and may not be used for any purpose other than to identify prospective properties consumers may be interested in purchasing, and that the data is deemed reliable but is not guaranteed accurate by the California Regional MLS.

Contact

Learn More About This Property

StateCA
CountySan Bernardino
CityJoshua Tree
Zip Code92252
AreaDC622 Sunfair West
Sourced by Back At You
Listing Updated: November 4, 2025 at 5:48:32 PM PST